Prodej samostatného rodinného domu 4+1 Ládví / Kamenice, pozemek 912 m2

13.500.000 Kč
Celkem 48 fotografií, zobrazit všechny

Prodej samostatného rodinného domu 4+1 Ládví / Kamenice, pozemek 912 m2

13.500.000 Kč
Popis nemovitosti:

Rodinný dům se nachází v obci Ládví, ulice Liliová (součást obce Kamenice).

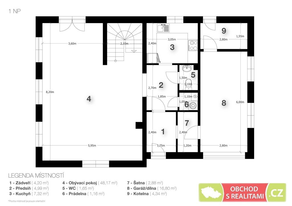
Celková podlahová plocha domu je 182 m2. V přízemí je k dispozici prostorný obývací pokoj (48 m2), samostatná kuchyň, technická místnost (21 m2), zádveří, předsíň, komora a WC. V patře jsou pak tři samostatné velké ložnice (17 m2, 18 m2, 20 m2), koupelna, šatna, pracovna a komora.

Dům je napojený na veřejnou kanalizaci i vodovod, na pozemku je i studna, vodu je tedy možno přepojit jak na veřejný vodovod, tak na studniční vodu. Na pozemku je také nyní již nepoužívaná jímka o objemu 6 m3, kterou je možno předělat na retenční nádrž na dešťovou vodu. Do domu je zavedena přípojka společnosti CETIN (internet). Dům má EZS (alarm), který je napojen na ostrahu Jablotron.

Pro vytápění a ohřev užitkové vody je využíváno tepelné čerpadlo (vzduch/voda), v obývacím pokoji jsou krbová kamna zn. Jotul o výkonu 10 kW. Dle posledního ročního vyúčtování činila spotřeba elektřiny 5,173 MWh, tedy 32 tis. Kč/rok, při současném používání krbových kamen se spotřebou 3 m3 dřeva/rok.

Zahrada je vzrostlá, okolní stavby mají dostatečný odstup, pozemek o výměře 912 m2 poskytuje dostatek soukromí. Z obývacího pokoje je přístup na terasu s pergolou, na pozemku je dále i skleník a dřevník. Z ulice byly vybudovány dva vjezdy, ten první je u vchodu do domu, tím druhým je možné vjet na zahradu, je tak možné zaparkovat další rozměrný automobil, obsloužit zahradu nebo třeba nechat složit dřevo na zahradu.

Dům leží na klidném místě a je velmi dobře osluněný od východu k západu; obývací pokoj má okna orientovaná na východ, jih i západ, hlavní obytný prostor je tak velmi dobře prosvětlený. Dům byl vystavěn z pálených tvárnic Porotherm o šíři 40 cm s dodatečným zateplením a byl kolaudován v roce 2000.

Obec Kamenice nabízí kompletní občanskou vybavenost – školku, školu, lékaře, knihovnu, sportoviště i obchody.
Ládví je velmi dobře dopravně dostupné autem nebo MHD. Zastávka autobusu se nachází ve vzdálenosti 330 metrů od domu, spojení přes Jesenici, Vestec, Krč až na metro trasy C Budějovická či opačným směrem na Benešov, nájezd na Pražský okruh nebo na D1 je vzdálen 9 km od domu.

Ve vzdálenosti 250 metrů od domu je vstup do Obory Vlková, tedy rozlehlé lesy s mnoha trasami směr Poříčí nad Sázavou, Jílové u Prahy nebo Krhanice. Poloha domu v blízkosti lesů je dobře patrná z přiložených fotografií pořízených z dronu.

Nemovitost doporučujeme s ohledem na použité tradiční a kvalitní stavební materiály, výbornou polohu v rámci obce i dobrou orientaci vůči světovým stranám. Nemovitost nabízí rozumný poměr mezi životem v blízkosti přírody a dostupností Prahy, příp. Benešova. 

Typ nemovitosti:
Dům, vila
Typ domu:
Rodinný dům
Číslo nemovitosti:
968787
Adresa:
Kamenice
Liliová 232
Operace:
Prodej
Plocha pozemku:
912 m2
Plocha zastavěná:
114 m2
Plocha podlahová:
182 m2
Stav objektu:
Velmi dobrý
Konstrukce:
Cihlová
Vydaný certifikát:
B - Velmi úsporná
Typ certifikátu:
vyhláška č. 264/2020 Sb
Je zobrazena tato GPS souřadnice:
49° 53' 42.840"N, 14° 36' 32.754"E