Praha / Prosek, byt 2+KK (moderní / po rekonstrukci)

16.900 Kč za měsíc
Celkem 22 fotografií, zobrazit všechny

Praha / Prosek, byt 2+KK (moderní / po rekonstrukci)

16.900 Kč za měsíc
Popis nemovitosti:

Bytová jednotka se nachází ve třetím nadzemním podlaží v zatepleném panelovém domě na adrese Ctěnická 695/13, Praha 9 / Prosek.

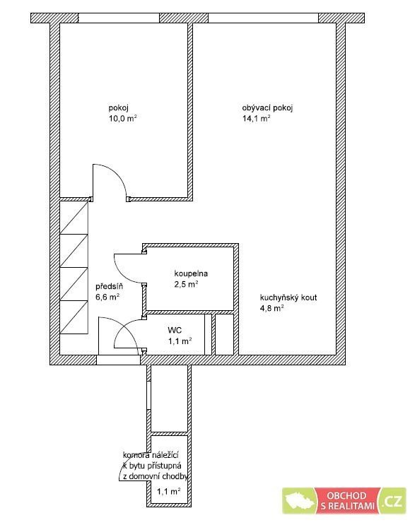
Byt 2+KK má zděné jádro a výměru 38 m2 + 1m2, komora na patře hned u vchodu do bytu, dispoziční plánek přikládáme. S bytem je možno využívat balkon na patře společný pro 3 jednotky. Byt zůstane vybaven nábytkem a spotřebiči dle přiložené fotodokumentace (tedy i myčkou nádobí či kombinovanou chladničkou, pečící troubou, indukční varnou deskou vše značky BOSCH). V koupelně k dispozici pračka. V předsíni velká vestavěná moderní skříň. Byt je vybaven bezpečnostními dveřmi zn. NEXT a je nově vymalován. Podlahovou krytinou v celém bytě je vinyl. Okna jsou orientována na jih, výhled do klidného vnitrobloku, pod okny nejezdí auta.

V domě možnost připojení k internetu Vodafone (UPC).

V blízkosti mateřská školka, dům dětí a mládeže nebo supermarket BILLA v nedalekém obchodním centru. Jen 3 minuty chůze je vstup do metra trasy C Prosek, 4 minuty zastávka BUSu směr metro Vysočanská nebo Palmovka.

Nájemné za bytovou jednotku je 16.900 Kč / měsíc, záloha na služby 3.555 Kč / měsíc+ převod elektrické energie na nájemce (cca. 1000 Kč) Jistota (kauce) 25.000 Kč, odměna realitní kanceláře jedno měsíční nájemné. Prosíme zájemce bez zvířat.

Typ nemovitosti:
Byt
Typ bytu:
2+kk
Číslo nemovitosti:
977388
Adresa:
Praha
Praha 9
Ctěnická
Operace:
Pronájem
Vlastnictví:
Osobní
Plocha podlahová:
38 m2
Plocha sklepa:
1 m2
Podlaží:
3. podlaží z 8 podlaží celkem
Stav objektu:
Velmi dobrý
Konstrukce:
Panelová
Vydaný certifikát:
C - Úsporná
Typ certifikátu:
vyhláška č. 264/2020 Sb
Je zobrazena tato GPS souřadnice:
50° 07' 19.687"N, 14° 30' 4.518"E