Březová u Zvole, stavební pozemek 853 m2

9.000.000 Kč
Celkem 28 fotografií, zobrazit všechny

Březová u Zvole, stavební pozemek 853 m2

9.000.000 Kč
Popis nemovitosti:

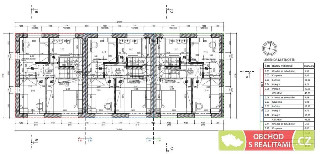
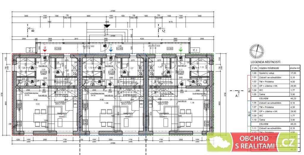
Předmětem nabídky je stavební pozemek přímo na návsi obce Březová Oleško. K pozemku bylo vydáno stavební povolení na výstavbu rodinného domu o třech bytových jednotkách!

Každá z jednotek má dispozici 4+KK s užitnou plochou 94 m2. V dispozičním uspořádání každého z bytů nechybí technická místnost nebo šatna! Půdorysy s legendou i pohledy přikládáme.

DSP, včetně vyjádření dotčených orgání, k dispozici.

Nejedná se o novou zástavbu na tzv. poli nebo chatovou osadu s malými pozemky a nízkou mírou soukromí.
Právě poloha pozemku je ojedinělou nabídkou v této lokalitě, jedná se o proluku ve stávající zástavbě!
Pozemek má optimální orientaci, když vstup na pozemek je ze severu a zahrada je orientována na jih.

Lokalita je oblíbenou pro nízký provoz aut (v obci Oleško silnice končí, pak už je jen stezka pro pěší nebo jízdní kola dolů k Vltavě, tranzitní doprava je tak v místě vyloučena), pohyb jen místních občanů nebo v sezóně chatařů. V okolí nejsou žádné negativní stavby nebo provozy, jen rodinné bydlení, lesy, pole nebo pastviny pro koně.

Přes náves projíždí autobus, výstupní i nástupní zastávky jsou tak jen desítky metrů od pozemku. Aktuální autobusové spojení je na vlakovou stanici Vrané na Vltavou nebo přes Dolní Břežany na metro trasy C Kačerov (v budoucnu lze očekávat spojení na metro trasy D Písnice).

U pozemku se nachází vodovodní řad, v rámci projektu je povolena přípojka!
U společnosti ČEZ bylo zažádáno o přípojku a uhrazen poplatek ve výši 50% za připojení.

Na vaše případné dotazy rád odpovím telefonicky / emailem nebo se můžeme sejít na místě.

Typ nemovitosti:
Pozemek
Typ pozemku:
Bydlení
Číslo nemovitosti:
976013
Adresa:
Březová-Oleško
Operace:
Prodej
Plocha pozemku:
853 m2
Je zobrazena tato GPS souřadnice:
49° 54' 53.660"N, 14° 24' 58.106"E